Jefferson Subdivision Homes

Lot Price

The price of a lot is $20,000. If developed within 12 months, $10,000 will be rebated.

House Designs

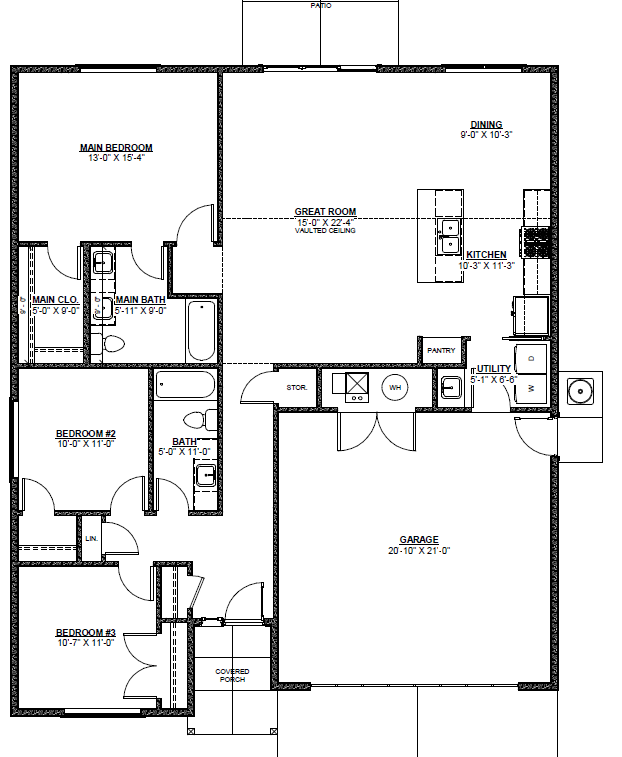
House Design 1

  • 3 Bed / 2 Bath with office
  • 1,813 square feet
  • $344,900
  1. 1 House 1 Design Exterior
  2. 2 House 1 Design Floor Plan

House Design 2

  • 3 Bed / 2 Bath
  • 1,550 square feet
  • $294,900
  1. 1 House 2 Design Exterior
  2. 2 House 2 Design Floor Plan

House Design 3

  • 3 Bed/2 Bath with office
  • 1,627 square feet
  • $314,900
  1. 1 House 3 Design Exterior
  2. 2 House 3 Design Floor Plan

House Design 4

  • 3 Bed / 2 Bath
  • 1,568 square feet
  • $309,900
  1. 1 House 4 Design Exterior
  2. 2 House 4 Design Floor Plan

House Design 5

  • 3 Bed / 2 Bath
  • 1,335 square feet
  • $235,000
  1. 1 House 5 Design Exterior
  2. 2 House 5 Design Floor Plan